rehousing a 62' Tremolux in a combo cabinet

Discussion of Speakers, Cabinets and Cabinet Building

Moderators: pompeiisneaks, Colossal

add4
Posts: 7
Joined: Fri Jan 10, 2014 4:04 pm

rehousing a 62' Tremolux in a combo cabinet

Post by add4 »

Hello,

I have a January 62 Tremolux in perfect working state, but i hate the piggyback thing. I would really prefer to have it in a 'as-smal-as-possible' combo, with say, one efficient 12" speaker.

The idea comes from here :
http://gretschpages.com/forum/other-amp ... 374/page1/

And i honestly find this pretty sexy! is it me or this combo looks slightly smaller than a deluxe reverb?

I haven't buit one cab before so i was thinking of starting from deluxe reverb combo cab blueprints and adapt them to the width and depth of the chassis of the Tremolux. But i can't seem to find any plan for this kind of combo around the net. Would you have some links?

Also, are finger joints really needed? I haven't found an easy way to make them yet so if they can be discarded, that would be easier :)

Thanks for your help and advice.
User avatar
Structo
Posts: 15446
Joined: Wed Oct 17, 2007 1:01 am
Location: Oregon

Re: rehousing a 62' Tremolux in a combo cabinet

Post by Structo »

If you are not going to use a finger or dove tail joint I would use reinforced butt joints .

For a combo I would at least reinforce the corners with a block glued and screwed.

Due to the additional weight of the speaker the load on the carry handle.

Here is a Deluxe type combo design.

Personally I have gotten away from combo amps because they are heavy and are brutal on tubes.
Attachments
5E3_DELUXE_STYLE_CABINET.pdf
(204.46 KiB) Downloaded 103 times
Tom

Don't let that smoke out!
User avatar
M Fowler
Posts: 14036
Joined: Wed Jan 16, 2008 2:19 am
Location: Walcott ND

Re: rehousing a 62' Tremolux in a combo cabinet

Post by M Fowler »

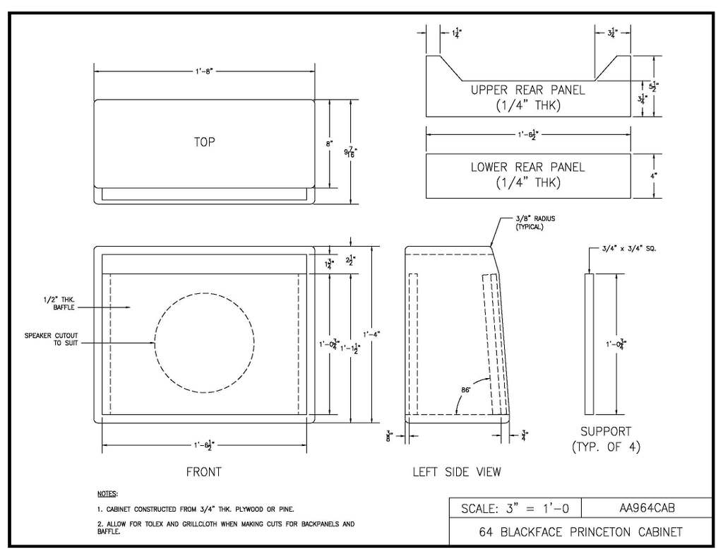
The Tremolux is slighter longer then the BF Bassman chassis.

I have attached the BF Princeton cab plan that you can go by but should increase the height to allow for 12" speaker and clear the output transformer.
Attachments
BFPrincetonCabinet.jpg
User avatar
Structo
Posts: 15446
Joined: Wed Oct 17, 2007 1:01 am
Location: Oregon

Re: rehousing a 62' Tremolux in a combo cabinet

Post by Structo »

Yep, definitely check the transformer clearance to speaker before you cut any boards.
Tom

Don't let that smoke out!
add4
Posts: 7
Joined: Fri Jan 10, 2014 4:04 pm

Re: rehousing a 62' Tremolux in a combo cabinet

Post by add4 »

Hey guys, I just arrived there and you're being super helpful! thanks a lot!

Thanks for the informations.

By the way, my PT is 110V and in europe we're using 220V.
I'm currently using a generic, cheap, big and heavy 220V->110V transformer for this amp.
Is that possible that i'm actually starving the amp with not enough power to let it really sing (think difference between stock modern fender amps and mercury magnetics trannies).

Soundwise, would it be rewarding to order a mercury magnetics PT for this amp, and keep the original PT in case i want to sell the amp one day?

At the moment, i don't think this amp sounds killer, i thought it was the speakers (old jensens i'm not sure i love them) but i have no experience with speaker swapping so i'm not sure if what i don't like comes from them, or a possible lack of power ... or both.
User avatar
Structo
Posts: 15446
Joined: Wed Oct 17, 2007 1:01 am
Location: Oregon

Re: rehousing a 62' Tremolux in a combo cabinet

Post by Structo »

Just make sure the transformer you are using can supply the current required by the amp.

You could install what is called an international transformer with multiple primary leads.

Or get a 5 amp or so Variac wired for 220v.

[img:1982:2141]http://imagehost.vendio.com/bin/imagese ... A_220V.JPG[/img]
Tom

Don't let that smoke out!
Geeze
Posts: 381
Joined: Fri Jul 12, 2013 3:41 am

Re: rehousing a 62' Tremolux in a combo cabinet

Post by Geeze »

I can't speak to the transformers but I will weigh in on the speakers/tone. 'Good' tone is very subjective. Based on your comments on the possible 'starved for power' amp and Jensen speakers are you positive you like the amp? Is it worth the effort and expense?

The reason I am being contrary is I went through six amplifiers last year [Guitar Center's 30 day trial is awesome] before finding one that gave me the tone and flexibility I wanted. I took my guitar/pedals/speaker cab to demo amps to weed out the unworthy. My equipment has to earn the right to be on the team. If you have the ability to take your amp/guitar and try out speaker cabs with speakers you are interested in that will shorten and cheapen the learning curve. It will also help you determine if you have an amp worth the effort you describe. I wasted years with amp/pickup combinations that ultimately did not suit my taste - I simply was not educated enough to know what questions to ask. At one point I didn't play an amplified guitar for five years because it did not excite me enough to care about improving. I'd like to think I am smarter but I am probably more willing to experiment, ask what I think are stupid questions and invest as I learn more.

Unless you love the sound of your amp with the pickups / pedals you have I would look long and hard at combo amps to find one that may be worthy. No matter how hard you polish a turd it will always be one.
User avatar
cbass
Posts: 4401
Joined: Sat Jul 23, 2011 6:17 pm
Location: Between Pomona & Bakersfield

Re: rehousing a 62' Tremolux in a combo cabinet

Post by cbass »

If you want to avoid joinery I would suggest pocket screws .you can get a guide and a bit for about 30 bucks.
add4
Posts: 7
Joined: Fri Jan 10, 2014 4:04 pm

Re: rehousing a 62' Tremolux in a combo cabinet

Post by add4 »

Hey.
Thanks to you all for your helpful advices.

About the amp, well i bought it a long time ago, not really knowing much about tube amps. I heard one tremolux in a studio recording and loved the tone so i was looking for one, i heard a first one, loved the sound, did not buy it because it was an expensive one. Tried this one and liked it less, but bought it anyway.. so i guess it's always been due to .. speakers or the transformer in front of the PT.

Today the sound i want is much clearer, but it is, say, a deluxe reverb with more headroom, or a twin with less watts, and more portability.
If i could, i'd also want a bit more 'push' on the sound, kind of the cleans of a mesa mark II i tried.

As this tremolux has the same circuit as the deluxe, with 6L6 instead of 6V6, i guess this should be close to one of the sounds i like.

Also i heard my amp through a marshall 4x10 cab and loved it (to my surprise... i usually don't like the marshall sound).

So i think the amp might be good for what i want, just not well taken care of (bought it in 1999, with original filter caps...) not optimized. Do speakers age badly sometime?

About the ways to build the cab .. this would be my very first one and i have no experience in this kind of woodworking so i'm watching videos on the techniques you mention.. thanks for you help
User avatar
overtone
Posts: 512
Joined: Tue Feb 23, 2010 12:25 pm
Location: 230V Frankfurt

Re: rehousing a 62' Tremolux in a combo cabinet

Post by overtone »

Yes, even old Jensens can get old and sound rubbish. Play it with as many other speakers as you can.

I don't "get" the sound you are after but a '62 Tremolux should be fine with the original transformers. I doubt that your dropping transformer in front of the PT or the PT itself is the root of the problem you are having.
This talk of PT "starving" is not helping. Try not to get swayed by marketing gobbledygook.

Just check the rating of your dropping transformer as Structo said.
Try to forget the magic Mercury iron for now because you may have a much simpler and cheaper to fix issue.

When was it last serviced by a competent tech for checks of bias, E-caps, leaking coupling caps, etc.? A good tech will tell you what needs to be done, quote you and give you the old worn out parts afterwards.

That is a good amp, take care of it!
add4
Posts: 7
Joined: Fri Jan 10, 2014 4:04 pm

Re: rehousing a 62' Tremolux in a combo cabinet

Post by add4 »

Thanks for your advice..

Well as i said when i bought it i knew nothing about tube amps so i just played it until it started to crackle and pop then buzz really loudly, took it to an crappy amp tech who changed the tubes, didn't check the caps.. it was still buzzing.. so i finally took it (1 year ago) to a good amp tech around here, who made all the necessary changes (filter caps, grid resistors were almost gone too).
Then my daughter arrived and i had to bring it back to my parents ... lack of space at home.. hence my question about (temporarily) rehousing it in a more reasonably sized combo :) .

The amp tech is also the one who told me about my transformer who could maybe be a problem. The power consumption is written on the chart inside the head, right?

I also would like to change the PT to remove one more thing to carry ..
What are good transformers that i could use? (i'll of course keep the original and remount it if i ever sell the amp ... ) Mercury magnetics are overrated from what you seem to say.. so is hammond the way to go ?

As far as speaker goes, i'm thinking celestion or weber, but i have no idea which model to take yet

That's a fine amp indeed, even with these speakers, it's sounding much better than most amps i've heard.
I'm lucky to have found it a few years earlier .. i've heard the prices of these skyrocketed here in europe.
Geeze
Posts: 381
Joined: Fri Jul 12, 2013 3:41 am

Re: rehousing a 62' Tremolux in a combo cabinet

Post by Geeze »

You report you liked the Marshall 4x10 cab - FYI the Marshall 'Sound' is more the amp than the speakers. Find out what speakers were in the 4x10 - this would be a good place to start. If you loved the sound I doubt there is a good reason for changing the transformers.

For ease of construction I would use the butt joint as Structo mentioned.
Attachments
4x8 shell detail.JPG
add4
Posts: 7
Joined: Fri Jan 10, 2014 4:04 pm

Re: rehousing a 62' Tremolux in a combo cabinet

Post by add4 »

Well I usually don't like a Marshall amp at all.
I liked the tremolux through a Marshall cab. So that might be the speakers indeed.
add4
Posts: 7
Joined: Fri Jan 10, 2014 4:04 pm

Re: rehousing a 62' Tremolux in a combo cabinet

Post by add4 »

Geeze wrote:You report you liked the Marshall 4x10 cab - FYI the Marshall 'Sound' is more the amp than the speakers. Find out what speakers were in the 4x10 - this would be a good place to start. If you loved the sound I doubt there is a good reason for changing the transformers.

For ease of construction I would use the butt joint as Structo mentioned.

Thanks for the reinforced butt join pic. I might go for that at first. How do you attach the pieces of wood required to attach the speaker panel? Glue? screws from the outside ?

Thanks in advance
add4
Posts: 7
Joined: Fri Jan 10, 2014 4:04 pm

Re: rehousing a 62' Tremolux in a combo cabinet

Post by add4 »

Also aren't the reinforcements on the upper panel taking the chassis position on the corners?
Post Reply