Cab Plans
Moderators: pompeiisneaks, Colossal
Cab Plans
Here are some cab plans.
- Attachments
-
- TL806 (1 x 12) Builders Plans.pdf
- (409.8 KiB) Downloaded 273 times
-
- 18wattcabinet2_134.pdf
- (450.85 KiB) Downloaded 229 times
-
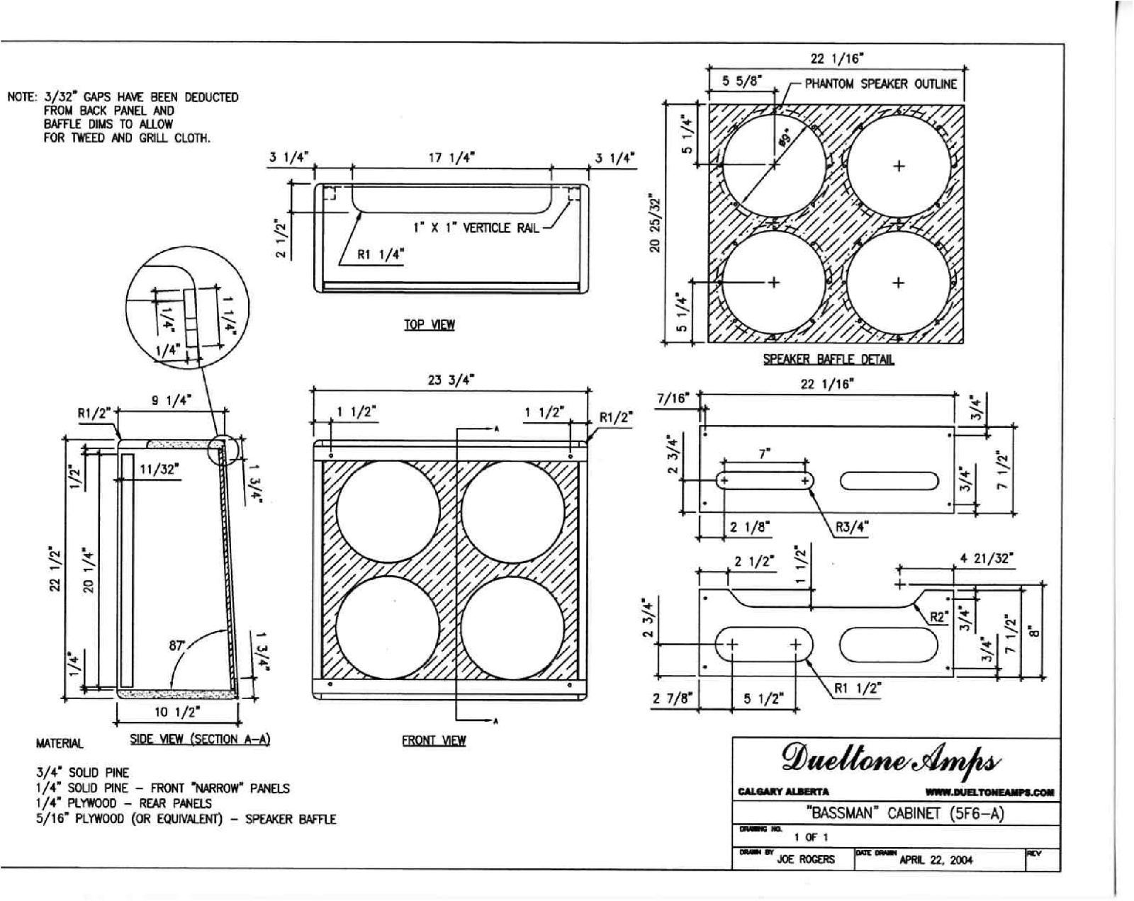
- 1960a_slant_cab_rev1_192_201.pdf
- (77.59 KiB) Downloaded 267 times
Re: Cab Plans
Thanks, Mark
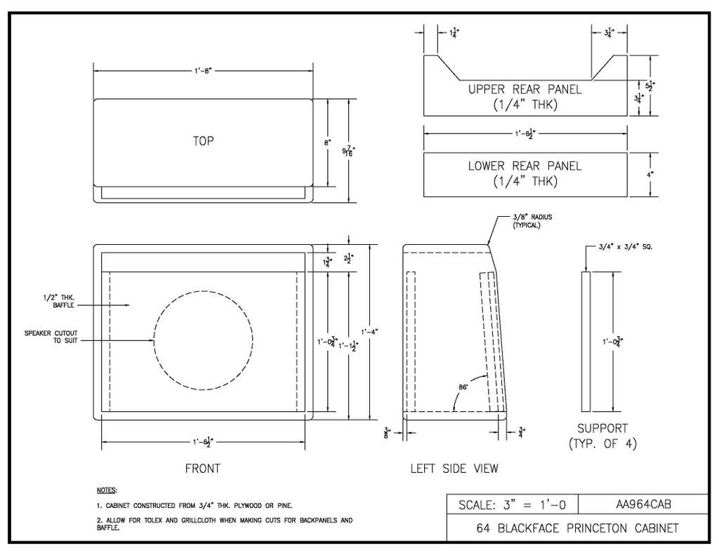
That Princeton drawing is a great start for any small Fender-style combo amp. I'd love to build one of those Tweedle Dees in that format.
That Princeton drawing is a great start for any small Fender-style combo amp. I'd love to build one of those Tweedle Dees in that format.
Re: Cab Plans
More
- Attachments
-
- Champ cab (5F1).pdf
- (133.14 KiB) Downloaded 178 times
-
- champ_cabinet.pdf
- (19.87 KiB) Downloaded 166 times
-
- 5E3 cabinet construction.pdf
- (98.66 KiB) Downloaded 190 times
-
- 5e3_cabinet_sheet_1_826.pdf
- (22.6 KiB) Downloaded 173 times
-
- 5e3_cabinet_sheet_2_136.pdf
- (26.93 KiB) Downloaded 182 times
Re: Cab Plans
More
- Attachments
-
- 1-58-Bandmaster-3.pdf
- (30.07 KiB) Downloaded 226 times
-
- 001_HEAD_CABINET.pdf
- (39.11 KiB) Downloaded 226 times
-
- 18_watt_head_cabinet_plan_198.pdf
- (102 KiB) Downloaded 192 times
-
- 18watt_2x12_cab_141_149.pdf
- (65.5 KiB) Downloaded 212 times
-
bluesfendermanblues
- Posts: 1314
- Joined: Tue May 22, 2007 12:57 pm
- Location: Dumble City, Europe
Re: Cab Plans
Does anyone have cabinet plans for a Gibson EH150 combo cabinet with rounded shoulders?
Diva or not? - Respect for Mr. D's work....)
Thanks
Mark you are "The Man"you have contributed so much to TAG.Thanks buddy
Custom Built Amps for Sale!http://faithamps.weebly.com/
Re: Cab Plans
Thanks Mike, a small payback compared to ours on this great Forum 